Оборудование для производства арочного профиля. Описание товара
- Оборудование для производства арочного профиля. Описание товара
- Станок для бескаркасных ангаров. Оборудование для бескаркасных ангаров
- Мобильное оборудование для производства сайдинга. Недорогая практичность
- Mic-240. Обычно в минимальный комплект оборудования МБС для строительства бескаркасных ангаров входят:
- Станок сфера. Описание оборудования для бескаркасного арочного строительства «Сфера» и «Сфера-1000»
Оборудование для производства арочного профиля. Описание товара
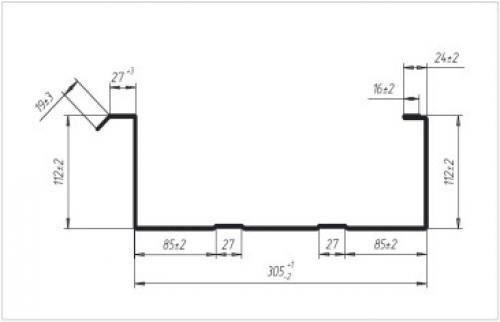
НЗПО предлагает оборудование для изготовления бескаркасных сооружений арочного типа. Предлагаемая технология обеспечивает быстрое изготовление непосредственно на строительной площадке панелеформовочной машиной конструктивных элементов сооружения и их монтаж. В качестве исходных материалов используется рулонная сталь (оцинкованная, не оцинкованная, нержавеющая, с полимерным покрытием) толщиной 0,8 - 1,2 мм.

Из полученного на оборудовании профиля, монтируются арочные сооружения любых размеров. Радиус и ширина арки регулируемые от 3 до 21 метра. Профиль является несущим, поэтому не требуется никаких каркасов. Оборудование в собранном виде транспортируются на автомобиле и эксплуатируются непосредственно на строительной площадке.
Основные преимущества перед технологиями каркасного строительства
- Высокие темпы строительства . Сооружение площадью 1000 кв. метров производится и монтируется всего за 2 недели. С учетом высоких темпов производства и монтажа панелей бригада из 5 строителей в состоянии изготовить и смонтировать более 50 арочных панелей за смену.
- Низкая себестоимость строительства . Затраты на строительство бескаркасных арочных сооружений с помощью нашего оборудования составляют менее половины строительных затрат на сооружения каркасных типов.
- Мобильность и возможность работы в труднодоступных районах . Строительное оборудование несложно транспортировать в обычном грузовом автомобиле в любой отдаленный район и начать работу прямо с момента прибытия на стройплощадку и выгрузки с транспорта. Таким образом, исключаются затраты на транспортировку каркасных строительных деталей с предприятия-изготовителя до стройплощадки.
- Отсутствие колонн, балок и ферм . Арочные панели являются по конструкции полностью самонесущими и безопорными, в отличие от сооружений каркасных типов.
- Экономия на гидроизоляции и крепеже . Зданиям и сооружениям, построенным на нашем оборудовании, не требуется гидроизоляция. При завальцовке арок с помощью электрической закаточной машины, входящей в комплект оборудования, образуются водонепроницаемые швы. При монтаже и креплении арок друг с другом не нужны шайбы, болты, заклепки.
![]() |
| Оборудование для производства арочного профиляНЗПО предлагает инновационное оборудование для изготовления бескаркасных сооружений арочного типа, что обеспечивает быстрое и эффективное производство на строительной площадке. Технология производстваПредлагаемая технология использует панелеформовочную машину, которая позволяет создавать конструктивные элементы сооружения непосредственно на строительной площадке. Это обеспечивает высокую производительность и уменьшает время строительства. МатериалыДля производства арочного профиля используются рулонные стальные листы различных марок: оцинкованные, неоцинкованные, нержавеющие и с полимерным покрытием. Толщина листов - 0,8-1,2 мм. Характеристики арочного профиля
Преимущества оборудованияОборудование для производства арочного профиля предлагает следующие преимущества:
Транспортировка и эксплуатацияОборудование в собранном виде транспортируется на автомобиле и эксплуатируется непосредственно на строительной площадке. |
![]() | ![]() | ![]() |
![]() | ![]() | ![]() |
Станок для бескаркасных ангаров. Оборудование для бескаркасных ангаров
В настоящее время на рынке представлены несколько мобильных строительных комплексов, в том числе и Российского производства. Все они работают по одному принципу, позволяя получить ангары разной ширины. Но наиболее надежным и хорошо зарекомендовавшим себя во многих странах является оборудование для бескаркасных ангаров американского производителя.

Компания MIC Industries Inc. это изобретатель и мировой производитель универсальной фабрики на колесах по изготовлению стальных бескаркасных арочных ангаров. Компания совершила революцию в мире строительства, выпустив первый в своем роде завод на колесах производящий стальные панели для монтажа ангаров непосредственно на строительной площадке. Автоматизированные строительные комплексы (ABM - automatic building machine) позволяют возводить ангар в течение суток!
Заказчики во всем мире убедились на опыте в способности ABM обеспечивать строительство не ограниченных по целевому назначению строений намного быстрее и экономичнее чем прежде.
Строительный комплекс полностью мобилен, его можно доставить практически в любое место с помощью прицепа по дорогам или транспортировать на самолете. На самом объекте, ABM полностью самодостаточен. Его двигатель и электрогенератор обеспечивает нужное электропитание. Благодаря наличию пульта управления с микропроцессором, оператор с легкостью управляет всем процессом производства.

При наличии машины MIC-240 бригада рабочих из 7-12 человек способна построить здание 1000 м2 за сутки. Система ABM значительно удешевляет строительство (снижаются расходы на стройматериалы, рабочую силу, отсутствуют затраты на транспорт). Важно, что ангар возводиться без опорных конструкций (балок, опор, ферм). По окончанию строительства, ангары можно достраивать и изменять. Для примера, рассмотрим строительство бескаркасного ангара на оборудовании ABM MIC-240.
Мобильное оборудование для производства сайдинга. Недорогая практичность
Начнем с того, что сайдинг могут делать из разных материалов: цемента, металла и даже дерева, но в большинстве случаев потребители предпочитают сайдинг из ПВХ или, как его чаще называют, виниловый сайдинг. К числу его преимуществ перед другими отделочными материалами относят:
- легкий и быстрый монтаж;
- устойчивость к внешним климатическим воздействиям;
- низкую стоимость;
- высокие эстетические свойства.

Виниловый сайдинг изготовляют из первичной виниловой пудры или ПВХ вторичной переработки. «Особо отмечу, что сайдинг из пудры получается более качественный, – поясняет технолог Мария Семенова. – Но произведенный из вторичного поливинилхлорида сайдинг тоже имеет свою стабильную нишу. Несмотря на невысокие эксплуатационные характеристики, его хорошо покупают жители южных регионов, имеющих мягкий климат, или просто те покупатели, кому нужно подешевле обшить объект». По словам технолога, выбор остается за бизнесменом, но стартапы, ориентированные на вторичное сырье, в условиях кризиса и всеобщей тяги к экономии естественным образом окупаются быстрее.
Что касается самого процесса производства, то он заключается в том, что сырье, а также дополнительные компоненты загружают в камеру экструдера , где и плавят до вязкой консистенции. Далее полученную массу выдавливают через формующее устройство.
Предприятия попроще могут применять метод моноэкструзии, по которому сайдинг производится из массы однородной по составу. Данный метод считается постепенно устаревающим и используется все реже. Мощные, более современные производства ориентированы на коэкструзию, которая представляет собой одновременную экструзию двух различных слоев (нижнего винилового, в 80% от толщины профиля, и верхнего акрилового – в 20%) и подразумевает использование для этого сразу двух экструдеров.
Продукт, произведенный таким методом, получается более высоким по качеству. Поэтому при создании своего предприятия по производству сайдинга ориентироваться стоит именно на него.
Mic-240. Обычно в минимальный комплект оборудования МБС для строительства бескаркасных ангаров входят:
- Разматыватель — выполняет размотку рулона металла и подачу на прокатный стан (1 шт);
- Стан прокатный — выполняет прокат прямых профилей. Имеет отрезное устройство (1 шт);
- Стан гибочный — придает заготовкам арочный профиль (1 шт);
- Приемные столы — принимают заготовки со станов. Соответственно прямой и полукруглый столы (2 шт);
- Фальцезакаточная машинка ручная — герметично скрепляет арки в арочные секции (1 шт);
- Трансформатор, дизельный генератор — для электропитания оборудования (1 + 1 шт);
- Траверса с двумя захватами — для подъема и установки арок (1 шт).
На рынке бескаркасного строительства дорогое оборудование представлено брендами:
- M.I.C. Industries Inc (США)
- ZEMAN Bauelemente GmbH (Австрия)
Первые мобильные комплексы AutomaticBuildingMachine (MIC-120 и MIC-240) американской компании M.I.C. Industries, Inc. были завезены в Россию в 90-х года. Станки MIC-240 используют для гибки рулонную сталь шириной 914,4 мм (1 ярд), ширина получаемого трапециевидного профиля составляет 610 мм.

В конце 90-х тамбовская компания «Радуга-Кровля» начала выпускать мобильные комплексы «Радуга-МБС», которые являлись прототипами MIC-120.
Также в России производятся МБС:
- «Сфера» компании «Ажурсталь» (г.Челябинск; с 2007 г.)
- «Арка 610» компании «Декор» (г.Тамбов; с 2012 г.)
- «Радуга» ООО «Митеком-Плюс» (г.Москва)
Эксперт заметил, что при покупке оборудования необходимо обращать особое внимание на расчетную толщину стали и возможности эксплуатируемого подрядчиком оборудования. Практически все МБС не катают сталь толще, чем 1,2 мм (это обусловлено конструкцией МБС). Лишь недавно ООО «Радуга-Кровля» заявила о способности работать со сталью 1,4 мм (см. «»).
Станок сфера. Описание оборудования для бескаркасного арочного строительства «Сфера» и «Сфера-1000»

Рынок строительства ангаров по бескаркасной технологии из холодногнутых профилей, произведенных из листового металла, растет с каждый годом. Данная технология позволяет снизить затраты на строительство промышленных объектов в несколько раз по сравнению с традиционной технологией строительства.
Фирм производящих оборудование для изготовления арочных конструкций для строительства ангаров на сегодняшний день уже насчитывается несколько десятков и легко запутаться в выборе подходящего оборудования. Мы уже делали обзор оборудования для строительства бескаркасных сооружений различных производителей.
В данной статье мы рассмотрим станки от компании «Ажурсталь», которая специализируется на производстве станков для металлообработки с 2001 года, а с 2007 года разработано и запущено производство оборудование «Сфера» для строительства быстровозводимых бескаркасных зданий и сооружений.
Мы работаем по всей России. Оставьте заявку на расчет стоимости ангара на нашем сайте, сравните сметы разных компаний и выберите лучшее предложение.
На сегодняшний день компания предлагает два станка для бескаркасного арочного строительства – это «Сфера» и «Сфера-1000». Данное оборудование, так же как и станки других производителей позволяет изготавливать несущие арочные конструкции непосредственно на самой строительной площадке, что позволяет сократить расходы и сроки строительства.
Надежность и качество разработанного оборудования обеспечивается благодаря специалистам и инженерному составу имеющему опыт конструирования военной техники.
Отличия у станков «Сфера» и «Сфера-1000» в производимых профилях для несущих конструкций. Так, станок «Сфера» производит арки из «П» профиля из оцинкованной стали шириной 600 мм, а «Сфера-1000» производит арки из «V» профиля из рулонной оцинкованной стали шириной 1000 мм. Именно используемая ширина стали легла в основу аббревиатуры станка.


Но станки отличаются не только производимым профилем, но и минимально шириной производимой арки. Станок «Сфера» позволяет строить ангары с пролетом от 6 до 24 метров, станок «Сфера-100» может производить арки с минимальной шириной в 14 метров и не более 30 метров.


Неоспоримым преимуществом перед конкурентами является бесплатное обучение персонала работе на данном оборудовании, которое «Ажурсталь» предоставляет свои покупателям.
Что в данном оборудовании отмечают те, кто его уже приобрел:
- низкая цена владения и обслуживания;
- высокий уровень технической поддержки компании;
- надежность в эксплуатации;
- возможность строить круглогодично;
- высокая производительность. Ангар 1000 кв.м. можно построить за 10 дней.
Оборудование работает в автоматическом режиме, изготавливая и отрезая арки заданной длины. Следуя рекомендациям проектной документации, Вы сможете строить прочные устойчивые здания. Все расчеты подкреплены исследованиями в ООО «Центральном научно-исследовательском и проектном институте строительных металлоконструкций» им. Н.П. Мельникова». Это позволяет избежать дорогостоящих сложных расчетов.









