Размеры пеноблоков для перегородок. Строение перегородки из пенобетона
Размеры пеноблоков для перегородок. Строение перегородки из пенобетона
Пеноблоки для перегородок укладываются по подобному принципу, что и кирпич. Изначально стоит определить, подходит ли перегородочный пеноблок для поставленной задачи. В основе материала используется пенобетон с высокими изоляционными качествами, но низкими несущими способностями. Он практичен в использовании и отличается долговечностью.

Перегородки из пеноблоков
Характеристики пенобетонных блоков придают материалу многочисленные преимущества:
- при укладке перегородок из пеноблоков кладка выполняется весьма просто и с минимальными временными затратами, процесс в 2 раза быстрее строительства из кирпича;
 - отличается хорошими звукоизоляционными и теплоизоляционными свойствами, легко поддаётся обработке. Если размеры пеноблоков для перегородок не подходят для поставленной цели, то всегда можно без труда отрезать часть элемента;
 - внутри легко просверлить отверстие для проводов или труб;
 - помогает реализовать дизайнерскую мысль:
 - многогранные фигуры, закруглённые арки и т. д., благодаря податливости к обработке ножовкой;
 - благодаря большой толщине перегородок и самих блоков в них можно прорезать дверной проём;
 - пеноблоки, и пенобетон в целом, подходит для декоративных обработок:
 - шлифование, укладка тяжёлой плитки, оштукатуривания поверхности, нанесение обоев и т. п.;
 - устойчив к температурным перепадам, химическим и биологическим жидкостям, влаге, воздействию ультрафиолетового света;
 - низкая цена материала делает его доступным широким массам;
 - не приводит к появлению большой нагрузки на фундамент или опоры.
 
Пеноблок размеры вес. Характеристики и вес пенобетонных блоков
Для возведения малоэтажных домов, хозяйственно-бытовых построек и других сооружений часто используются пенобетонные изделия. Они бывают нескольких видов, обладают разными свойствами и весом. Знать при планировании вес одного блока необходимо, так как это влияет на проектную массу стен, создаваемую ими нагрузку, а также выбор типа фундамента.

Размеры и вес
Технические характеристики сделали пенобетон популярным стройматериалом. По теплоизоляционным свойствам он немного уступает древесине, имея при этом большой эксплуатационный срок. Пенобетонный блок:
- не возгорается, не поддерживает горение;
 - обладает низкой теплопроводностью;
 - имеет хорошую звукоизоляцию;
 - у него низкая стоимость.
 
Масса прямо пропорциональна плотности с размером. Согласно ГОСТ стандартные ДхШхВ:
- 600х200х300 – блок;
 - 600х100х300 – полублок.
 
Технология изготовления позволяет производителям изменить параметры, установив любое соотношение сторон в соответствии с требованиями заказчиков. Максимальная длина изделия не должна превышать 600 мм.

Пеноблок используется для возведения домов и теплоизоляционных работ. Он бывает:
- конструкционный (сооружение фундаментов, несущих стен);
 - конструкционно-теплоизоляционный (малоэтажное строительство);
 - теплоизоляционный (перегородки, утепление объектов).
 
Зная размер, тип и место предназначения, можно узнать, сколько весит п енобетон, по специальным таблицам.
| Марка | Вес, шт/кг | Масса 1м3, кг | ||
| 600х200х300 стеновой | 600х100х300 перегородочный | |||
| Кол-во шт в 1м2 кладки | 8,4 | 16,7 | ||
| Кол-во шт в 1м3 | 28 | 56 | ||
| D300-В0,5 | теплоизоляционный | 11,7 | 5,8 | 330 | 
| D400-В0,75 | 15,6 | 7,8 | 440 | |
| D500-В1,0 | 19,4 | 9,7 | 540 | |
| D600-В2,5 | Конструкционно-теплоизоляционный | 23,3 | 11,7 | 650 | 
| D700-В3,5 | 27,2 | 13,6 | 760 | |
| D800-В5,0 | 31,7 | 15,8 | 890 | |
| D900-В5,0 | 35,6 | 17,8 | 990 | |
| D1000-В7,5 | Конструкционный | 39,6 | 19,8 | 110 | 
| D1100-В10,0 | 43,6 | 21,8 | 1220 | |
| D1200-В 12,5 | 47,5 | 23,8 | 1330 | 

Самым распространенным считается пеноблок 600х300х200. Он равен 13 силикатным или 15 керамическим кирпичам.
1. Маркировка (D) показывает на соотношение компонентов 1 м3.
2. Чем выше показатель прочности (плотности) материала, тем ниже его теплоизоляционные параметры.
3. Вес одного блока идентичного размера и марки, но разных производителей может не совпадать. Это связано с:
- влажностью материала;
 - сырьем, входящим в состав;
 - нарушением технологии.
 
Неточное дозирование сырья может привести к тому, что элемент с большой массой будет иметь низкую плотность. Поэтому самый легкий способ узнать вес 1м3 — это посмотреть сертификаты производителя на продукцию.
Вес куба пенобетона
Своими характеристиками пористый строительный блок обязан ячеистому бетону. В состав входят:
- портландцемент М400-М500;
 - синтетические или белковые пенообразователи;
 - модификаторы для улучшения качеств.
 

Технология производства несложная, но требует соблюдения ГОСТ на каждом этапе. Все пузырьки воздуха должны быть равномерно распределены по структуре готового изделия.
- В малоэтажном строительстве применяют блоки длиной до 60 см.
 - Монолитные пенобетонные плиты для промышленного возведения объектов режут специальными автоматизированными установками.
 - Раствор в жидком виде используется при заливке опалубки, выравнивании полов, создании других монолитных конструкций.
 
В среднем 1м3 равен массе от 580 до 630 кг, это зависит от пористости и количества внесенного наполнителя.
Небольшой вес теплоизоляционного пенобетона объясняется количеством цемента в его составе. У данного материала низкая прочность, он быстро деформируется при любой нагрузке. Если при изготовлении раствора использовались компоненты, усиливающие определенные характеристики, то цена конечной продукции автоматически повысится.
Сравнительная таблица стоимости
Расчет стоимости пенобетона при реализации осуществляется в кубах и обуславливается:
- типом марки;
 - производителем;
 - размером;
 - объемом приобретаемой продукции.
 

В цену может быть включена доставка.
| Марка (ДхШхВ), мм | Компания | Кол-во в 1м3, шт | Цена м3, рубли | Цена за шт | |
| D600 | 600х300х100 | Пеноблок.РУ, московская.обл | 55,56 | 3100 | 56 | 
| 600х300х120 | 46,3 | 67 | |||
| 600х300х150 | 37,04 | 3000 | 81 | ||
| 600х300х200 | 27,78 | 2950 | 106 | ||
| 600х400х200 | 20,83 | 3000 | 144 | ||
| 600х300х250 | 22,22 | 3020 | |||
| D300 | 600х250х200 | ||||
| 600х250х250 | |||||
- Средняя стоимость стенового блока варьируется от 140 до 230, а перегородочного — 55-85 рублей.
 - Цена 1 м3 пенобетона держится в пределах 2300-4800 рублей, зависит от региона и компании.
 
Представленные в прайсах цены не учитывают доставку. Приобретение большой партии происходит на договорной основе по согласованию с производителем.
Пеноблоки для перегородок. Устройство перегородок из пеноблоков
Перегородка из пеноблока может иметь разные размеры, но чтобы не возникло проблем с встраиванием дверного проема, лучше использовать изделия толщиной в 10 см. Если делать стену тоньше, придется увеличивать этот показатель за счет штукатурного слоя или теплоизоляции, чтобы увеличить шумоподавление. Кроме того, такой подход не скажется положительно на стоимости работ. Оптимальной толщиной новой стены будут показатели в пределах от 8 до 12 мм. Этого вполне достаточно для обеспечения нормального уровня пожаростойкости и звукоизоляции. А еще, конструкция будет способна эффективно выдерживать консольные нагрузки.
Внимание! Перегородки из пеноблоков устраиваются с использованием изделий, которые можно уложить на специальный клей или цементно-песчаный раствор. Последний обходится дешевле, но не позволяет делать такие тонкие швы, как при использовании клея.
Устройство перегородки из пеноблока предусматривает использование арматуры. Это могут быть прутья или сетка. Эти элементы закладываются в каждый третий ряд. В первом случае необходимо проделать специальные штробы. Их должно быть 2, а располагаться они должны перпендикулярно друг другу.
На заключительном этапе конструкция покрывается грунтовкой глубокого проникновения, чтобы при дальнейших отделочных работах повысить сцепляемость материалов и сократить впитываемость влаги. Это особенно актуально, если стены будут отделываться по мокрому способу, например, методом нанесения штукатурки.
Размер пеноблока 100. Размерность блоков
Изучим таблицу.
Таблица 1. Какие размеры пеноблоков бывают:
| Наименования изделия | Размер пеноблока стандарт | 
 Стеновые  | Длина, как правило, составляет 60 или 62,5 см. Ширина – 30, 40, 50 см, высота – 20, 25 и 30 см. | 
 Перегородочные пеноблоки, размеры 300 600 100 (такой изображен на фото)  | Длина таких изделий – аналогична вышеуказанным данным, составляет она 60 или 62,5 см. Толщина блоков значительно меньше и варьируется в промежутке от 80 до 150 мм. Стандартной высотой является размер в 25 см.  | 
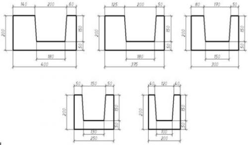
 У-образные  | Стандартные размеры пеноблоков у-образной формы указаны на картинке. Как уже говорилось выше, данный блок чаще всего применяется при монтаже опалубки для армопояса, перемычек. Правильно подобрать необходимый размер и изучить технологию использования, вам поможет  | 
 Блок-панель  | Длина составляет 1 или 1,8 метра, высота – 0,6 метра, а ширина – от 0,3 до 0,5 метра. | 
Обратите внимание! Существует гостовская классификация материала, основанная на отклонении от линейных размеров. Это означает, что длина, ширина или высота блоков может отличаться от стандартных. Это имеет серьезное значение при проведении кладочных работ и при определении применения. Именно поэтому на данный показатель стоит обращать особое внимание.
К примеру, блоки третьей категории точности при строительстве жилого дома, вообще не рекомендуют использовать. Из-за большой толщины шва, количество мостиков холода значительно увеличивается, что приводит к теплопотерям и необходимости очень серьезного утепления. Проще говоря, это финансово невыгодно.

Допустимые значения по ГОСТ
Многие из вас знают, что еще одним представителем ячеистых бетонов является газоблок и зачастую застройщики пытаются сделать выбор между двумя конкурирующими изделиями. Раз уж мы говорим о габаритах, стоит отметить, что размеры пеноблока и газоблока совершенно ничем не отличаются. И те, и другие имеют аналогичные формы, и даже подчиняются единому стандарту.

Размеры пеноблока и газоблока. Изготовление газобетона
Газобетон является искусственно созданным минералом, имеющим однородную ячеистую структуру.

Газобетонные блоки обычно отличает однородный светлый, даже с небольшим голубовато-серым отливом цвет
Благодаря своему строению, газобетонные блоки обличаются небольшим весом, поэтому строительство стен дома или других сооружений вполне могут быть произведены без привлечения подъемной техники. Блоки хорошо поддаются обработке, и при необходимости уменьшить их размер — материал легко распиливается ручной ножовкой. В ряде случаев для ускорения этого процесса может быть использована «болгарка» или же электрический лобзик.

При необходимости раскроя газобетонных блоков вполне можно обойтись обычной ножовкой
Процесс изготовления газобетонных блоков заключается в следующем:
- Подготовленные в определенных пропорциях материалы (песок, цемент, известь) засыпаются, и перемешиваются в сухом состоянии в специальном смесителе в течение 4÷5 минут. Затем туда добавляется суспензия алюминиевой пудры, изготовленная на водной основе.
 - В процессе перемешивания известь вступает в активную реакцию с алюминием, в результате которой образуется водород в свободном состоянии. Благодаря обильному газообразованию по всему объему смеси, в сырьевой массе появляются пузырьки, имеющие размер от 0,5 до 2 мм, которые равномерно распределяются в растворе.
 - Готовый раствор заливается в заранее разогретые до 40 градусов специальные формы. Заливка осуществляется примерно на ½ объема емкости формы.
 - После того как раствор будет залит в форму, его отправляют в камеру созревания, где происходит окончательное порообразование, в результате чего масса в объеме вырастает практически вдвое и набирает транспортную прочность. Для активизации реакции в растворе и лучшего распределения состава формы подвергаются вибрационным нагрузкам.
 - После достижения раствором предварительного затвердевания, с помощью натянутых проволочных струн с поверхности застывшей массы срезаются образовавшиеся неровности.
 - После заливки, из камеры созревания готовый массив отправляется на линию резки .
 - Следующим этапом работ отвердевшие изделия направляют в автоклав.
 



