Оборудование для производства арочного профнастила
- Оборудование для производства арочного профнастила
- Мобильное оборудование для производства сайдинга. Недорогая практичность
- MIC-240. Современная технология строительства с применением MIC-240
- Станок сфера. Описание оборудования для бескаркасного арочного строительства «Сфера» и «Сфера-1000»
- Машина профилегибочная сфера. Детальное описание
Оборудование для производства арочного профнастила
Под заказ
Заказать товар Задать вопрос
Оборудование для производства арочного профнастила:
Данная профилегибочная машина ВПК-240 разработана нашей компанией по той же технологии, что и листогибочная машина ПРО ВПК-240. Она состоит из механического бухторазмотчика, механизма обхвата прямой доски, гидравлического и электрического устройства для резки, механизма обхвата изогнутой доски, системы управления, погрузочно-разгрузочной эстакады для прямой и изогнутой доски, а также устройства для изгиба доски и других комплектующих инструментов. Все части установлены на переносном основании, что делает сборку очень удобным.
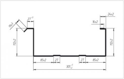
Боковой вид:
Оборудование для производства арочного профнастила. - Особенности:
* Валки изготовлены из высококачественной стали, с покрытием жесткого хрома.* Существует резиновое подающее устройство, подача, которой равна 0,8-1,5мм. В ходе производства, нет необходимости корректировать пробелы между валиками.
* Подъемник весом 2кг. (аналогичный пр-во США весит 30кг). Это способствует быстрому и удобному монтажу.
* Большой охват, высокая передача, прочность на растяжение, без резьбовой муфты.
Оборудование для производства арочного профнастила – Применение
Арочный профнастил широко используется в строительстве заводов, трамвайного парка, ангара для самолетов, стадионов, выставочных залов, театров и т.д.
Мобильное оборудование для производства арочного профнастила- Основная техническая характеристика:
| Монтажные габариты: | 8900мм x 2300мм x 2500мм | 
| Общий вес: | 10500кг | 
| Система управления: | электрический контроль | 
| Мощность основного движущего мотора: | 7.5кВт | 
| Мощность двигателя: | 3+1.1+1.1кВт | 
| Мощность двигателя электрической резки: | 3кВт | 
| легированная сталь 45# , быстро охлаждаемая КПЧ 58-62 | |
| легированная сталь 45# | |
| Cr12Mov, быстро охлаждаемый | |
| Валковая зона изгиба: | 13 зон | 
| Рабочая скорость: | |
| Максимальный охват: | 36000мм | 

Оборудование для производства арочного профнастила.
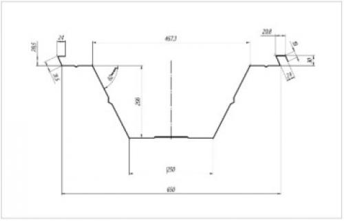
 Вид с боку:
 Вид с боку: 
Оборудование для производства арочного профнастила - Основная техническая характеристика:
| Габариты: | 8900мм x 2250мм x 2400мм | 
| Total weight | 9500кг | 
| Система управления: | электрический контроль | 
| Мощность основного движущего мотора: | 7.5кВт | 
| Мощность двигателя: | 3+1.1+1.1кВт | 
| Мощность двигателя электрической резки: | 3кВт | 
| легированная сталь 45#, быстро охлаждаемая КПЧ 58-62 | |
| легированная сталь 45# | |
| Cr12Mov | |
| Валковая зона изгиба: | 13 зон | 
| Рабочая скорость: | |
| Максимальный охват: | 24000мм | 
Фальцепрокатный станок для производства фальцевой кровли со стоячим фальцем


Заказать товар
Оформите заявку на сайте, мы свяжемся с вами в ближайшее время и ответим на все интересующие вопросы.
Мобильное оборудование для производства сайдинга. Недорогая практичность
Начнем с того, что сайдинг могут делать из разных материалов: цемента, металла и даже дерева, но в большинстве случаев потребители предпочитают сайдинг из ПВХ или, как его чаще называют, виниловый сайдинг. К числу его преимуществ перед другими отделочными материалами относят:
- легкий и быстрый монтаж;
- устойчивость к внешним климатическим воздействиям;
- низкую стоимость;
- высокие эстетические свойства.  
Виниловый сайдинг изготовляют из первичной виниловой пудры или ПВХ вторичной переработки. «Особо отмечу, что сайдинг из пудры получается более качественный, – поясняет технолог Мария Семенова. – Но произведенный из вторичного поливинилхлорида сайдинг тоже имеет свою стабильную нишу. Несмотря на невысокие эксплуатационные характеристики, его хорошо покупают жители южных регионов, имеющих мягкий климат, или просто те покупатели, кому нужно подешевле обшить объект». По словам технолога, выбор остается за бизнесменом, но стартапы, ориентированные на вторичное сырье, в условиях кризиса и всеобщей тяги к экономии естественным образом окупаются быстрее.
Что касается самого процесса производства, то он заключается в том, что сырье, а также дополнительные компоненты загружают в камеру экструдера , где и плавят до вязкой консистенции. Далее полученную массу выдавливают через формующее устройство.
Предприятия попроще могут применять метод моноэкструзии, по которому сайдинг производится из массы однородной по составу. Данный метод считается постепенно устаревающим и используется все реже. Мощные, более современные производства ориентированы на коэкструзию, которая представляет собой одновременную экструзию двух различных слоев (нижнего винилового, в 80% от толщины профиля, и верхнего акрилового – в 20%) и подразумевает использование для этого сразу двух экструдеров.
Продукт, произведенный таким методом, получается более высоким по качеству. Поэтому при создании своего предприятия по производству сайдинга ориентироваться стоит именно на него.
MIC-240. Современная технология строительства с применением MIC-240
 
  
 
Если вы не знакомы с тем, как построить бескаркасный ангар, то это дело поправимое. Прежде всего расскажем вам об уникальной технологии производства конструктивных элементов.
M.I.C. Industries Inc. U.S.A.
Что делает машина MIC-240, и как она работает? Это разработка единственной в мире компании, выпускающейдля устройства бескаркасных ангаров. Прямо на строительной площадке происходит процесс преобразования оцинкованного металла в готовое изделие. Так как изначальной сферой применения MIC была военная промышленность США, то мобилизация практически в любую точку — одно из обязательных условий. Сталь из катушки погружается в специальный отсек механизма, который делает ее рифленой и гнет в арку заданного диаметра.
Параметры конструкций, изготовленных MIC-240

- высота от 4,5 до 12 метров;
- ширина от 9 до 24 метров;
- длина зависит от технического задания и доходит до 100 метров.
Материал для быстровозводимого ангара
Катушки стали, которые изготавливаются на заводе, составляют большую часть бюджета строительства. Под конкретные размеры ангара, который нужно возвести, мы производим расчет и заказываем материал у проверенного поставщика. Знаете, проверенный поставщик материалов в наше время тоже редкость. Так как, решив сэкономить, можно получить не качественный материал. Даже наличие сертификата качества не всегда является гарантом соответствия, так как бывают случаи предоставления подложных сертификатов. Но это все-таки дело наказуемое, поэтому мы не будем углубляться в тему. Разоблачение недобросовестных компаний не входит в тему написания данной статьи.
Монтаж быстровозводимого ангара
Готовые элементы конструкции переносят к месту монтажа, который выполняется с применением крана. Арки "сшивают" при помощи профессиональной вальцовочной машинки по три штуки, создавая эффект консервной банки. То есть в процессе монтажа получается полностью герметичное сооружение и готовый самонесущий склад. Хотя, совершенно не обязательно, что это будет именно склад.
Станок сфера. Описание оборудования для бескаркасного арочного строительства «Сфера» и «Сфера-1000»

Рынок строительства ангаров по бескаркасной технологии из холодногнутых профилей, произведенных из листового металла, растет с каждый годом. Данная технология позволяет снизить затраты на строительство промышленных объектов в несколько раз по сравнению с традиционной технологией строительства.
Фирм производящих оборудование для изготовления арочных конструкций для строительства ангаров на сегодняшний день уже насчитывается несколько десятков и легко запутаться в выборе подходящего оборудования. Мы уже делали обзор оборудования для строительства бескаркасных сооружений различных производителей.
В данной статье мы рассмотрим станки от компании «Ажурсталь», которая специализируется на производстве станков для металлообработки с 2001 года, а с 2007 года разработано и запущено производство оборудование «Сфера» для строительства быстровозводимых бескаркасных зданий и сооружений.
Мы работаем по всей России. Оставьте заявку на расчет стоимости ангара на нашем сайте, сравните сметы разных компаний и выберите лучшее предложение.
На сегодняшний день компания предлагает два станка для бескаркасного арочного строительства – это «Сфера» и «Сфера-1000». Данное оборудование, так же как и станки других производителей позволяет изготавливать несущие арочные конструкции непосредственно на самой строительной площадке, что позволяет сократить расходы и сроки строительства.
Надежность и качество разработанного оборудования обеспечивается благодаря специалистам и инженерному составу имеющему опыт конструирования военной техники.
Отличия у станков «Сфера» и «Сфера-1000» в производимых профилях для несущих конструкций. Так, станок «Сфера» производит арки из «П» профиля из оцинкованной стали шириной 600 мм, а «Сфера-1000» производит арки из «V» профиля из рулонной оцинкованной стали шириной 1000 мм. Именно используемая ширина стали легла в основу аббревиатуры станка.


Но станки отличаются не только производимым профилем, но и минимально шириной производимой арки. Станок «Сфера» позволяет строить ангары с пролетом от 6 до 24 метров, станок «Сфера-100» может производить арки с минимальной шириной в 14 метров и не более 30 метров.


Неоспоримым преимуществом перед конкурентами является бесплатное обучение персонала работе на данном оборудовании, которое «Ажурсталь» предоставляет свои покупателям.
Что в данном оборудовании отмечают те, кто его уже приобрел:
- низкая цена владения и обслуживания;
- высокий уровень технической поддержки компании;
- надежность в эксплуатации;
- возможность строить круглогодично;
- высокая производительность. Ангар 1000 кв.м. можно построить за 10 дней.
Оборудование работает в автоматическом режиме, изготавливая и отрезая арки заданной длины. Следуя рекомендациям проектной документации, Вы сможете строить прочные устойчивые здания. Все расчеты подкреплены исследованиями в ООО «Центральном научно-исследовательском и проектном институте строительных металлоконструкций» им. Н.П. Мельникова». Это позволяет избежать дорогостоящих сложных расчетов.

Машина профилегибочная сфера. Детальное описание
Машина профилегибочная «Сфера», предназначена для изготовления из рулонной оцинкованной стали профилированных листов, применяемых для изготовления бескаркасных арочных конструкций покрытия - ангаров.
Производство "Ажурсталь", г. Челябинск. Станок приобретался новым в 2017 году в компании ООО ПКП «Ажурсталь», так и ни разу не эксплуатировался. Хранится в заводском чехле.
Возможны различные варианты расчета нал/безнал (НДС).
Строительный комплекс «Сфера» - уникальная разработка челябинского предприятия «Ажурсталь», которая позволяет быстро, качественно и недорого возводить строительные объекты из стальных холодногнутых профилей: ангары и склады, хранилища сельскохозяйственной продукции, мастерские, станции по ремонту, гаражи, надстраиваемые офисные и жилые этажи, производственные помещения различного назначения.
Машина профилегибочная «Сфера» предназначена для изготовления из рулонной оцинкованной стали ГОСТ 14918-80 профилированных листов ТУ 1120-001-82913322-2009, применяемых для изготовления бескаркасных арочных конструкций покрытия ТУ 5283-001-82913322-2009.
Комплекс «Сфера» мобилен – все оборудование перевозится в прицепе или в кузове машины длинной 8 м. и доставляется непосредственно на строительную площадку. Основная идея технологии проста и эффективна – оборудование позволяет изготавливать конструктивные элементы будущих сооружений прямо на строительной площадке. Вам только останется доставить металлопрокат непосредственно на место застройки. После чего станок включается в работу, перерабатывая стальные рулоны в прочные строительные панели, которые соединяются между собой с помощью специальной автоматической закаточной машинки. При этом получаются стальные, абсолютно герметичные, всепогодные сооружения. Допустимая масса снегового покрова таких зданий составляет до 480 кг/кв.м*. Конструкция выдерживает скорость ветра в 200 км/ч* и может эксплуатироваться при температуре от -50 до +50 С. Возможна установка отопления. Кроме всего прочего, такие сооружения сейсмически устойчивы.
Рулонная сталь, применяемая при производстве панелей, может быть оцинкованной либо иметь лакокрасочное полимерное покрытие. Толщина листа стали может составлять от 0,8 до 1,2 мм. Ширина получаемой арки регулируется от 6 до 24 м. Длина арки практически не ограничена. Высота сооружения в коньке может достигать 10,5 м. При монтаже основной конструкции можно с легкостью запланировать окна, двери, ворота, витражи, декоративные элементы, врезки и пристройки.
Машина профилегибочная "Сфера" - уникальная разработка челябинского предприятия "Ажурсталь", предназначенная для изготовления из рулонной оцинкованной стали профилированных листов, применяемых для изготовления бескаркасных арочных конструкций покрытия.
Основные характеристики
- Предназначение: изготовление профилированных листов из рулонной оцинкованной стали
- Марка стали: ГОСТ 14918-80
- Технические условия: ТУ 1120-001-82913322-2009
- Масса снегового покрова: до 480 кг/кв.м
- Скорость ветра: до 200 км/ч
- Температура эксплуатации: от -50 до +50 С
Преимущества
- Быстрый и качественный сборка сооружений
- Недорогое производство
- Мобильность - оборудование перевозится в прицепе или кузове машины
- Возможность установки отопления
- Сейсмическая устойчивость
Возможности
- Изготовление ангаров и складов
- Изготовление хранилищ сельскохозяйственной продукции
- Изготовление мастерских, станций по ремонту, гаражей
- Изготовление надстраиваемых офисных и жилых этажей
- Изготовление производственных помещений различного назначения
